Design Studio Epsilon

October 2025

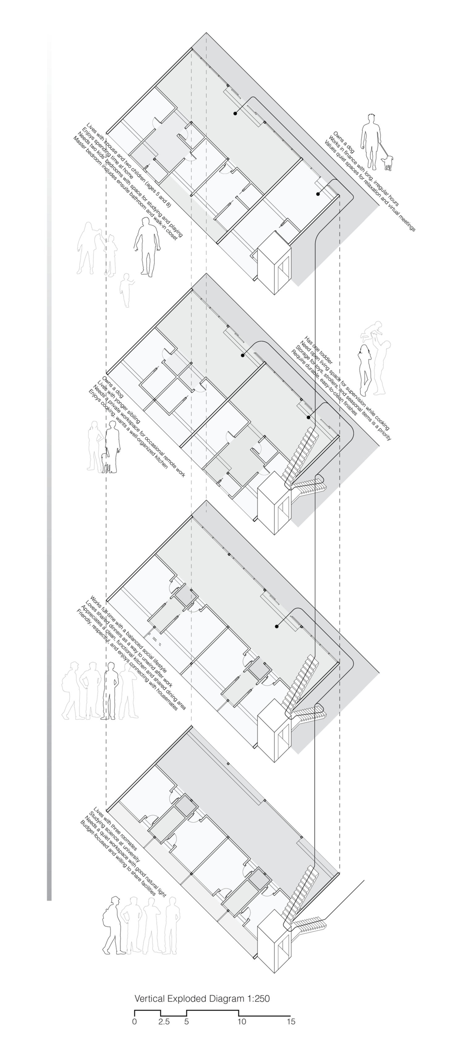
This medium-density residential development is guided by the concept of privacy gradient and layered living, where spatial ex
perience transitions gradually from communal to intimate, fostering both social connection and personal retreat for a diverse inter
generational community. The design establishes a clear spatial sequence—from the public courtyard to functional bike parking, to 
semi-public cluster corridors, and nally to private living spaces—structuring how residents move, interact, and inhabit the site. The 
project is organised by a 5×5 structural grid, where columns and slabs dene the determined built zones and provide a rational 
framework for dwelling, circulation, and gathering. Beyond this structural frame, operable timber batten façade system, vegetation, 
planting, and timber decking act as soft buers, extending the architecture outward and mediating the threshold between public and 
private realms. At the centre lies the main courtyard, conceived as the public and collective heart of the development—an open yet 
enclosed landscape for community events, play, and daily gathering, visually connecting the project to its neighbourhood context. 
Surrounding it are four secondary courtyards; each embedded within smaller dwelling clusters that foster semi-public encounters 
and a more intimate sense of community. Together, these architectural and landscape systems create a layered experience of liv
ing—a balanced coexistence of openness and enclosure that allows residents to navigate diverse degrees of connection, privacy, 
and belonging within a cohesive architectural framework

Shared Kitchen

Bedroom

Location:

Area;

Built Area:

No. of Units:

Year:

Penola St, Preston, Melbourne, VIC

10,000 m^2

4,217m^2

168

2025

Backyard Private Entry

Corridor